- 2,999万円 PriceDown ↓
- 1LDK | 40.50㎡ | 方南町駅 | 不可
マンション方南町の物件レポート
立地・アクセス
丸ノ内線「方南町」駅、東西に入口がある方南町駅の西口から徒歩2分!商店街から環七を少し下ったところ、環七に建物は面していますが、バルコニーは反対向きが中心だし環七の側道部分で本線は地下に潜るあたりだから音はそこまで気にならないかも。方南町の商店街も活気もありますが、スーパーなども多く、少し歩くと島忠ホームズもあり島忠ホームズの前には広町みらい公園もあるので、住みやすい住環境です。
物件
マンション方南町は、1974年築(昭和49年)地上8階建て総戸数28戸のマンション!築年はすこし古いですが、2021年に大規模修繕工事を終え、共用部も綺麗に修繕されています。間取りは40㎡台が中心なので、シングル・DINKSにオススメ!玄関ドアも新規交換済でダブルロック対応です!
(学区)
・方南小学校
・泉南中学校
設備・備考等
・エレベーター
・ペット飼育:不可
・駐輪場:
月額 1,000円(空き要確認)
・バイク置場:
月額 3,000円(空き要確認)
修繕履歴
・建物全体の修繕積立金:47, 311, 421円(2023年12月31日現在)
・2021年 4月 大規模修繕工事
・2021年 4月 大規模修繕工事
物件のPOINT
駅近 / バス便利! / 公園が近くにあります / 近くにコンビニあります / 近くにスーパーあります / 大通りが近い / 旧耐震 / 大規模修繕工事済み / ペット不可 / 玄関ドア改修済み / エレベーター / 中古マンション / 杉並区 / 丸ノ内線 / 方南町
販売中の部屋情報
- 2,999万円 PriceDown ↓
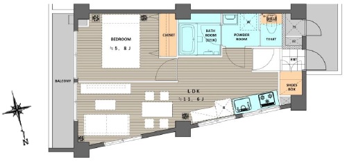
- 4階 | 1LDK | 40.50㎡ | 不可
部屋のPOINT
フルリノベーション / 陽当たり◎ / 角部屋 / 二面採光 / シングルおすすめ / キッチンに窓あるよ / 価格下がりました! / アフターサービス保証付 / リノベ完成しました! / 5,000万円以下 / 食洗機付
スタッフコメント
4階部分、角住戸!環七とは反対向き!シングルにおすすめ専有面積40.50㎡の1LDKタイプが新規内装フルリノベーションで登場!
・内装フルリノベーション
・見学は物件前待ち合わせで!いつでもOK!
・毎月返済額イメージ:81,549円/月
・販売スタート価格 | 3,080万円
物件概要
| 種類 | 中古マンション |
|---|---|
| 物件名 | マンション方南町 |
| 所在地 | 東京都杉並区方南2-23-8
GoogleMap |
| 交通 | 丸ノ内線「方南町」駅徒歩2分 丸ノ内線「中野富士見町」駅徒歩17分 |
| 販売価格 | 2,999万円 |
| 間取り | 1LDK |
| 専有面積 | 40.50㎡ |
| 管理費 | 13,600円 |
| 修繕積立金 | 14,800円 |
| 現況 | 空室 |
| 構造 | RC造 8階建て |
| 所在階 | 4階 |
| 築年月 | 1974年1月 |
| 総戸数 | 31戸 |
| 施工会社 | サカエ産業・朝妻主体工事 |
| 管理会社 | 大京アステージ |
| 管理形態 | 全部委託 巡回管理 |
| 駐輪場 | 月額 1,000円(空き要確認) |
| バイク置場 | 月額 3,000円(空き要確認) |
| 取引態様 | 仲介 |
| ペット飼育 | 不可 |
・ファミリーマート 杉並方南町交差点前店 (90 m)
・ファミリーマート 方南町駅前店 (98 m)
・セブンイレブン 方南店 (162 m)
・まいばすけっと 方南町店 (46 m)
・サミットストア 和泉店 (194 m)
・方南公園 (249 m)
・高井戸警察署 和泉交番 (127 m)
・方南町キッズワールド (113 m)
・スクルドエンジェル保育園方南町園 (181 m)
・ポピンズナーサリースクール方南町 (236 m)
・杉並区立方南小学校 (565 m)
・杉並区立泉南中学校 (160 m)
他の物件を探す
中野マンション倶楽部
営業時間 10:00~20:00
定休日 水曜日
京王新線「幡ヶ谷」駅北口徒歩2分
東京都渋谷区幡ヶ谷2-6-5 梅村ビル7階
定休日 水曜日
京王新線「幡ヶ谷」駅北口徒歩2分
東京都渋谷区幡ヶ谷2-6-5 梅村ビル7階






LINEでお問い合わせ