- 4,299万円 PriceDown ↓
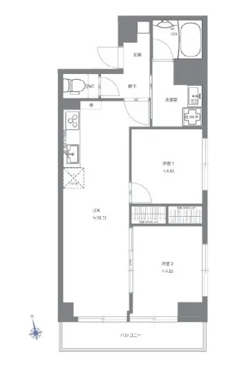
- 2LDK | 45.84㎡ | 方南町駅
モナークマンション第2方南(B号棟)の物件レポート
立地
丸の内線「方南町」駅が徒歩2分!駅近です!B号棟は環七沿いではありません。
物件
モナークマンション第2方南は1982年築(新耐震)、RC造地上5階建て総戸数32邸の中古マンションです。フラット35使えます。
設備・備考等
・エレベーター
・駐車場:月額円(空き要確認)
・駐輪場:
月額 500円(空き要確認)
修繕履歴
・平成30年6月大規模修繕工事実施
・平成25年エレベータ交換実施
・平成27年12月鉄部塗装工事
・平成25年エレベータ交換実施
・平成27年12月鉄部塗装工事
物件のPOINT
管理状態良好 / 公園が近くにあります / 近くにコンビニあります / 近くにスーパーあります / 新耐震基準適合 / 大規模修繕工事済み / エレベーター / 中古マンション / 杉並区 / 丸ノ内線 / 方南町
販売中の部屋情報
- 4,299万円 PriceDown ↓
- 5階 | 2LDK | 45.84㎡
部屋のPOINT
フルリノベーション / 陽当たり◎ / 価格下がりました! / アフターサービス保証付 / シングル・ディンクスにおススメ / リノベ完成しました!
スタッフコメント
最上階角部屋の5階部分、専有面積45.84㎡、2LDKが新規内装フルリノベーションで登場!
・内装フルリノベーション
・見学は物件前待ち合わせで!いつでもOK!
・毎月返済額イメージ:114,952円/月
・販売スタート価格:4,799万円
物件概要
| 種類 | 中古マンション |
|---|---|
| 物件名 | モナークマンション第2方南(B号棟) |
| 所在地 | 東京都杉並区方南2-4-24
GoogleMap |
| 交通 | 丸ノ内線「方南町」駅徒歩2分 |
| 販売価格 | 4,299万円 |
| 間取り | 2LDK |
| 専有面積 | 45.84㎡ |
| 管理費 | 12,400円 |
| 修繕積立金 | 22,920円 |
| その他費用 | 2,500円 |
| 現況 | 空室 |
| 構造 | RC造 5階建て |
| 所在階 | 5階 |
| 築年月 | 1982年10月 |
| 総戸数 | 32戸 |
| 施工会社 | 松村組 |
| 管理会社 | 東京互光 |
| 管理形態 | 全部委託 |
| 駐輪場 | 月額 500円(空き要確認) |
| 取引態様 | 仲介 |
| ペット飼育 | ― |
・ローソン LTF 杉並方南町:徒歩1分
・ファミリーマート 方南町駅前店:徒歩3分
・サミットストア 和泉店:徒歩3分
・まいばすけっと 方南町店:徒歩4分
他の物件を探す
中野マンション倶楽部
営業時間 10:00~20:00
定休日 水曜日
京王新線「幡ヶ谷」駅北口徒歩2分
東京都渋谷区幡ヶ谷2-6-5 梅村ビル7階
定休日 水曜日
京王新線「幡ヶ谷」駅北口徒歩2分
東京都渋谷区幡ヶ谷2-6-5 梅村ビル7階









LINEでお問い合わせ