- 12,780万円 PriceDown ↓
- 3LDK | 71.51㎡ | 中野坂上駅 | 不可
中野坂上パークホームズの物件レポート
立地
東京メトロ丸ノ内線と都営大江戸線が利用できる『中野坂上』とJRが利用できる『東中野』のちょうど中間あたりに位置する中野区中央1丁目アドレス。両駅とも徒歩10分程歩きます。区検通り沿いです。コンビニやスーパーが近くにあるので、普段のお買物に不便はなさそうです!
物件
中野坂上パークホームズは200年築(平成12年)、三井不動産旧分譲の【パークホームズ】シリーズです!RC造地上9階建て128邸の大型中古マンションです。オートロック、宅配ボックス完備。有人管理体制(曜~土曜まで)でセキュリティも安心。コノ字型に配棟された造りで、中庭を取り囲む設計。
設備・備考等
・オートロック
・宅配ボックス
・エレベーター(2基)
・ペット飼育:不可
・駐車場:月額27,000円~34,000円(空き要確認)
・駐輪場:
月額 300円~500円(空き要確認)
・バイク置場:
月額 4,000円(空き要確認)
修繕履歴
・建物全体の修繕積立金総額:2億26,577,813円(2021年12月時点)
・2021年:鉄部・防水保護塗装工事
・2019年:BS・CS設備改修工事
・2018年:排水ポンプ・ばっ気ポンプ交換
・2015年:大規模修繕工事
・2021年:鉄部・防水保護塗装工事
・2019年:BS・CS設備改修工事
・2018年:排水ポンプ・ばっ気ポンプ交換
・2015年:大規模修繕工事
物件のPOINT
管理状態良好 / 駅近 / 2沿線以上利用可 / 公園が近くにあります / 近くにコンビニあります / 近くにスーパーあります / 新耐震基準適合 / 大規模修繕工事済み / フラット35 / ペット不可 / オートロック / 宅配ボックス / 100戸以上のビッグコミュニティ / エレベーター / エレベーター2基以上 / 大江戸線 / 東中野 / 中野坂上 / パークホームズシリーズ
販売中の部屋情報
- 12,780万円 PriceDown ↓
- 3階 | 3LDK | 71.51㎡ | 不可
部屋のPOINT
フルリノベーション / 陽当たり◎ / 眺望◎ / 8,000万円以上 / 1億円以上 / 価格下がりました! / 床暖房 / 3LDKとれてます! / 70平米以上 / 食洗機付
スタッフコメント
・新規内装フルリノベーション(2026年2月下旬)
・5階部分、東向き
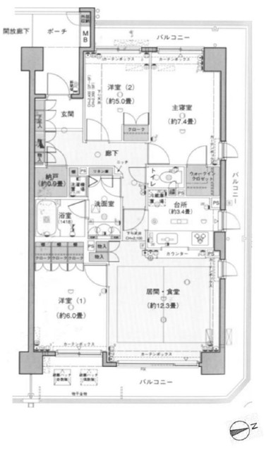
・専有面積71.51㎡、3LDK
・内装フルリノベーション
・見学は物件前待ち合わせで!いつでもOK!
・販売スタート価格 | 12,980万円
室内写真
物件概要
| 種類 | 中古マンション |
|---|---|
| 物件名 | 中野坂上パークホームズ |
| 所在地 | 東京都中野区中央1-50-17
GoogleMap |
| 交通 | 丸ノ内線「中野坂上」駅徒歩6分 大江戸線「中野坂上」駅徒歩6分 総武中央線「東中野」駅徒歩8分 |
| 販売価格 | 12,780万円 |
| 間取り | 3LDK |
| 専有面積 | 71.51㎡ |
| 管理費 | 8,220円 |
| 修繕積立金 | 20,240円 |
| 現況 | 空室 |
| 構造 | RC造 9階建て |
| 所在階 | 3階 |
| 築年月 | 2000年2月 |
| 総戸数 | 128戸 |
| 施工会社 | 三井建設 |
| 管理会社 | 三井不動産レジデンシャルサービス |
| 管理形態 | 全部委託 |
| 駐車場 | 月額 27,000円~34,000(空き要確認) |
| 駐輪場 | 月額 300円~500円(空き要確認) |
| バイク置場 | 月額 4,000円(空き要確認) |
| 取引態様 | 仲介 |
| ペット飼育 | 不可 |
ファミリーマート 中野中央一丁目店 (49 m)
セブンイレブン 東中野末広橋店 (263 m)
マルエツ プチ 中野中央店 (188 m)
まいばすけっと 中野中央2丁目店 (296 m)
ライフ 中野坂上店 (383 m)
Olympic(オリンピック)中野坂上店 (463 m)
マルマンストア 中野店 (616 m)
もとまちUNION(ユニオン) 新宿店 (617 m)
他の物件を探す
中野マンション倶楽部
営業時間 10:00~20:00
定休日 水曜日
京王新線「幡ヶ谷」駅北口徒歩2分
東京都渋谷区幡ヶ谷2-6-5 梅村ビル7階
定休日 水曜日
京王新線「幡ヶ谷」駅北口徒歩2分
東京都渋谷区幡ヶ谷2-6-5 梅村ビル7階












LINEでお問い合わせ