- 6,999万円
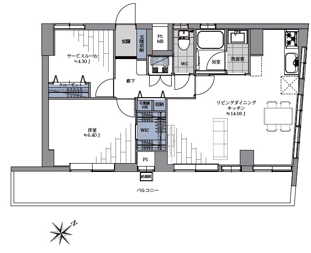
- 1SLDK+W | 60.46㎡ | 中野駅
中野住研コーポの物件レポート
立地・アクセス
話題の再開発が進行中の『中野』駅徒歩2分の駅近です!それでいて、大通りや線路に沿っていない好立地です!駅近なので、電車移動も便利ですが、バスで渋谷方面へもダイレクトアクセス可能なので、バス移動も便利ですよ!近くにはコンビニやスーパーもあるので、普段のお買物にも便利だし、飲食店も多いので外食も楽しめそうですね!
物件
中野住研コーポは、1968年築(昭和43年)地上7階建て総戸数61邸のマンションです。築年は少し古いですが、令和5年にエントランスを改修しており、オートロック&宅配ボックスもあり、エントランスからは築年を感じません!事務所利用も可能(細則あり)で、駅近なので事務所利用の需要ありそうですね!
(学区)
・桃花小学校
・中野中学校
設備・備考等
・オートロック
・宅配ボックス
・エレベーター
修繕履歴
・2024年10月 直結給水ブースターポンプユニット総合整備
・2023年 3月 共用部改修工事
・2022年12月 エレベーター更新工事
・2021年 8月 汚雑排水槽排水ポンプ交換工事
・2018年 9月 宅配ボックス設置工事
・2016年 9月 大規模修繕工事
・2023年 3月 共用部改修工事
・2022年12月 エレベーター更新工事
・2021年 8月 汚雑排水槽排水ポンプ交換工事
・2018年 9月 宅配ボックス設置工事
・2016年 9月 大規模修繕工事
物件のPOINT
駅近 / 2沿線以上利用可 / バス便利! / 住環境押し / 近くにコンビニあります / 近くにスーパーあります / 旧耐震 / 大規模修繕工事済み / ペット不可 / SOHO相談可 / オートロック / 宅配ボックス / エレベーター / 中古マンション / 中野区 / 中央総武線 / 中野
販売中の部屋情報
- 6,999万円
- 6階 | 1SLDK + W | 60.46㎡
部屋のPOINT
フルリノベーション / お風呂に窓あり / 角部屋 / 二面採光 / ウォークインクローゼット / キッチンに窓あるよ / アフターサービス保証付
スタッフコメント
6階部分、角住戸!専有面積60.46㎡の1SLDKタイプが新規内装フルリノベーションで登場!(2026年4月末)
・内装フルリノベーション
・見学は物件前待ち合わせで!いつでもOK!
・毎月返済額イメージ:190,318円/月
・販売スタート価格 | 6,999万円
物件概要
| 種類 | 中古マンション |
|---|---|
| 物件名 | 中野住研コーポ |
| 所在地 | 東京都中野区中野3-34-3
GoogleMap |
| 交通 | 中央線他「中野」駅徒歩2分 丸ノ内線「新中野」駅徒歩11分 丸ノ内線「東高円寺」駅徒歩14分 |
| 販売価格 | 6,999万円 |
| 間取り | 1SLDK + W |
| 専有面積 | 60.46㎡ |
| 管理費 | 16,360円 |
| 修繕積立金 | 31,380円 |
| その他費用 | 500円 |
| 現況 | 空室 |
| 構造 | RC造 7階建て |
| 所在階 | 6階 |
| 築年月 | 1968年6月 |
| 総戸数 | 61戸 |
| 施工会社 | 西松建設 |
| 管理会社 | 秀栄興産 |
| 管理形態 | 全部委託 日勤管理 |
| 取引態様 | 仲介 |
| ペット飼育 | ― |
・ファミリーマート 中野桃園店 (53 m)
・ファミリーマート 中野駅南口本通り店 (71 m)
・ピーコックストア 中野マルイ店 (111 m)
・まいばすけっと 中野3丁目店 (190 m)
・コープ中野 中央店 (220 m)
・桃園川緑道 (285 m)
・中野警察署 中野駅前交番 (198 m)
・マミールーム保育園 (98 m)
・ひまわり保育園 (134 m)
・にじいろ保育園中野 (251 m)
・中野区立桃花小学校 (361 m)
他の物件を探す
中野マンション倶楽部
営業時間 10:00~20:00
定休日 水曜日
京王新線「幡ヶ谷」駅北口徒歩2分
東京都渋谷区幡ヶ谷2-6-5 梅村ビル7階
定休日 水曜日
京王新線「幡ヶ谷」駅北口徒歩2分
東京都渋谷区幡ヶ谷2-6-5 梅村ビル7階





LINEでお問い合わせ